Carolina Medical

Project overview

This project focuses on the transformation of a storage room into a fully equipped staff kitchen for a pharmacy and clinic. Existing fixtures include a sink, wall cabinets, and a small table; however, the room’s usability is restricted by multiple inward-opening doors and an irregular plan shape. The redesign will streamline circulation, improve spatial efficiency, and deliver a compliant, hygienic, and operationally effective staff kitchen for daily use.

Project Contributions

  • Delivered precise 2D and 3D technical drawings for the full staff-kitchen renovation using BricsCAD and SketchUp, consistently meeting deadlines and achieving a 98% drawing accuracy rate.

  • Produced detailed existing-condition surveys and documented irregular wall geometry, door swing conflicts, and service locations to support accurate design planning.

  • Prepared high-quality 3D visualisations and presentation materials to communicate design intent clearly during client and consultant meetings, aiding in securing project approval.

  • Conducted targeted site analysis and feasibility studies, identifying key functional constraints—such as limited ventilation, insufficient power provision, and inefficient plumbing placement—and proposed practical solutions.

Software Used

BricsCAD, SketchUp, BlueBeam Revu, AI Render

110 ft2

Area of site

$10,000

Estimated budget

2025

Year

Under Construction

Status of the project

Staff Kitchen Renovation

While the existing room functions adequately as a storage area, it requires strategic spatial reconfiguration to serve as a fully equipped staff kitchen suitable for a pharmacy and clinic environment.

With improved zoning, custom cabinetry, updated plumbing, and upgraded ventilation, this space can be transformed into an efficient and staff-friendly break room that enhances workplace comfort and operational performance.

Drawing Issue 

Existing Storage Room — Floor Plan
New Staff Kitchen — Floor Plan
Staff Kitchen — Interior Elevation [A]
Staff Kitchen — Interior Elevation [B]
Staff Kitchen — Interior Elevation [C]
Staff Kitchen — Interior Elevation [D]
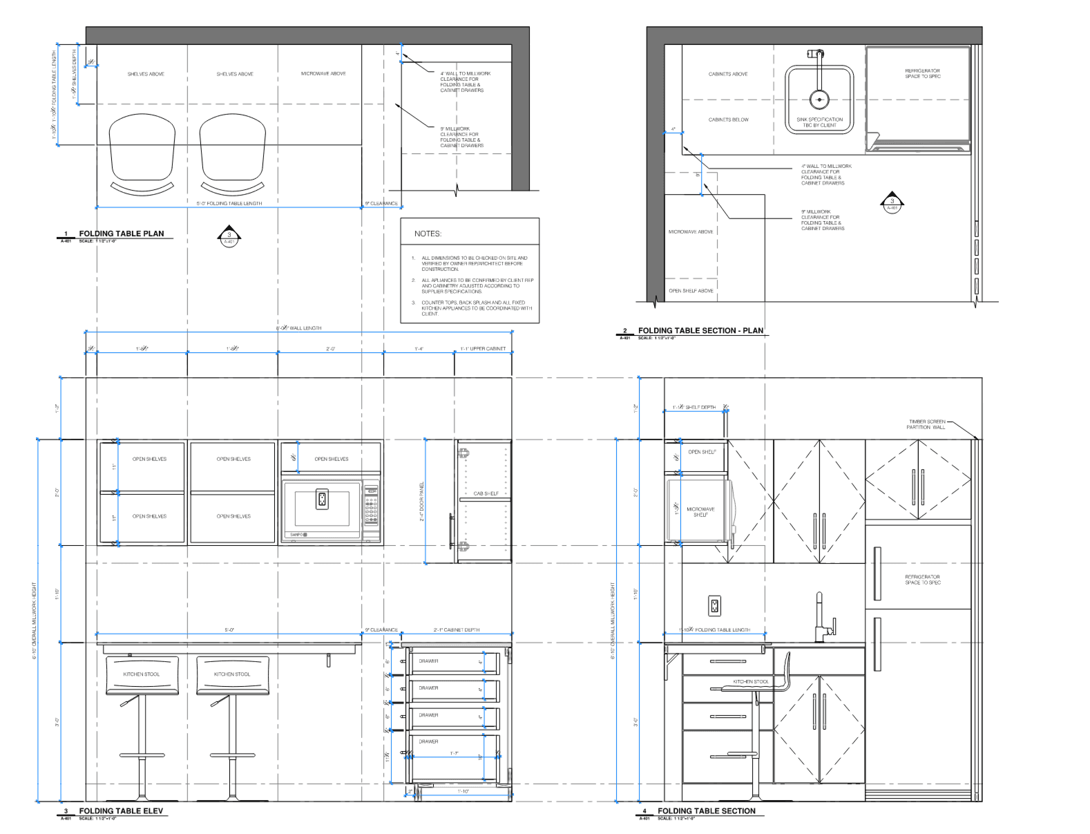
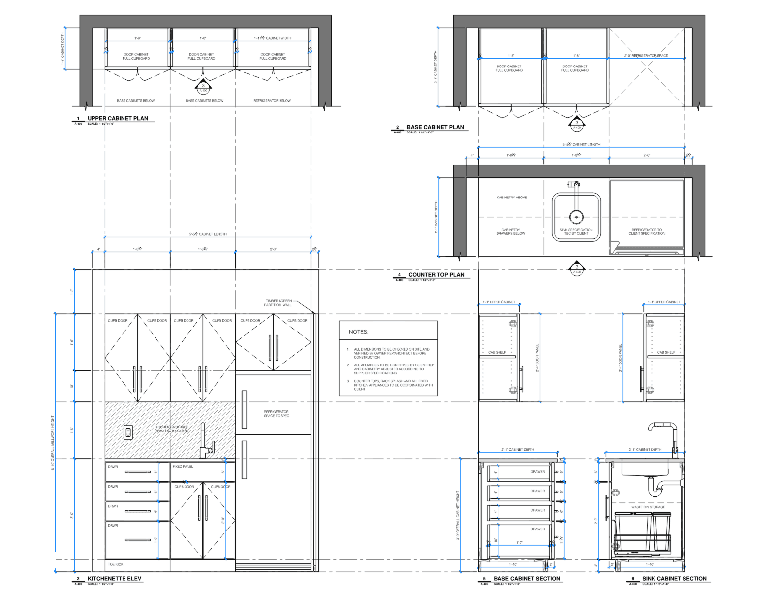
Kitchen Millwork — Plans,  Elevations + Sections
Kitchen Millwork — Plans,  Elevations + Sections
Kitchen Millwork — Plans,  Elevations + Sections

Results

The renovation converts a previously inefficient, visually cluttered storage room into a well-organised, fully serviced staff kitchen suited to the operational demands of a healthcare environment.

The redesigned layout enhances workflow efficiency through consolidated service zones, increases storage capacity, optimises space utilisation, and significantly improves overall user experience.

The result is a compact but highly functional staff kitchen that supports daily staff operations, enhances comfort and accessibility, and elevates the overall workplace environment in both the pharmacy and clinic.

3D Model + Sketchup AI Render

Thank you for your short delivery time and a meticulously well-thought-out design. We couldn’t be happier with it.

— Hugh Malcolm, Clinical Director/Lead at Carolina Medical

Justin Missick

Leeds, United Kingdom | +44 7456 048769 | justinmissick@outlook.com

© Discover Innovation, 2025.