Salacia Residence

Project Overview

This project involves the comprehensive remodelling, design, and delivery of the Salacia Residence—an exceptional beachfront estate situated on 1.5 acres of carefully curated tropical landscaping. Purposefully planned to accommodate up to eighteen guests, the residence features a sophisticated spatial arrangement and detailing that reflect its architectural ambition.

The design approach emphasises spatial clarity, environmental sensitivity, and an elevated architectural character that enhances and celebrates coastal living.

Project Contributions

  • Led the visioning and design development of key complementary amenities, including the Guest House, Pool Bar, and south-facing Gazebo.

  • Collaborated closely with junior architects to determine optimal building placement, resolve spatial layouts, and refine material specifications.

  • Assisted in advancing detailed design schemes with a focus on functional planning, guest flow, and environmental orientation.

  • Prepared and issued the full coordinated construction drawing set, integrating architectural details with MEP requirements.

  • Conducted regular site visits to monitor works, address construction queries, and support accurate on-site execution.

  • Gained comprehensive exposure across RIBA Stages 1–5, strengthening design development, technical proficiency, and end-to-end project delivery capability.

Software Used

BricsCAD, BlueBeam Revu

1027 ft2

Area of site

$382,000

Estimated budget

2024

Year

Complete

Status of the project

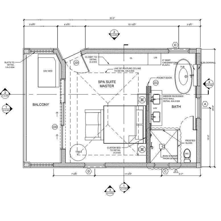
Villa Salacia

The property’s generous footprint, defined by expansive landscaped grounds and a refined freeform pool, creates a spatial framework that maintains privacy and tranquillity even at full guest capacity. A series of carefully positioned terraces and sheltered niches offer intentional moments of retreat throughout the site.

Site Master Plan

Drawing Issue—Guest House

Guest House Plan - L1
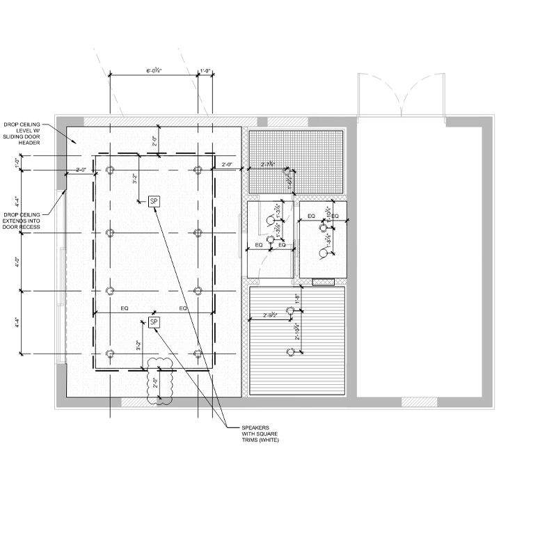
Guest House Plan - L1 Reflected Ceiling Plan
Guest House Plan - L2
Guest House Plan - L2 Reflected Ceiling Plan
Guest House—North, West & East Elevation
Guest House—South Elevation
Guest House—Section [A + B]
Guest House—Roof + First Floor Slab Detail
Guest House—Handrail + Ground Floor Slab Detail

Results

The guest house development was delivered to an exemplary standard, exceeding the client’s expectations in spatial performance, architectural resolution, and overall building quality. The addition has also strengthened the property's long-term value, providing enhanced flexibility for both short- and long-term rentals and contributing to a measurable increase in the property’s market value.

All submitted drawings obtained full approval from the local planning and development authority, with the scheme demonstrating complete adherence to building codes and regulatory criteria.

The outcome reflects a disciplined architectural process and a high level of technical rigour throughout design and execution.

Building & Construction Process

Drawing Issue—Pool Bar

Pool Bar—North & West Elevations
Pool Bar—South & East Elevations
Pool Bar—Section [A + B]

Building & Construction Process

Results

The pool bar addition was executed to a distinguished standard, elevating the existing pool area into a resort-grade social and leisure focal point. The integration of submerged seating, direct refreshment access, and refined detailing has enhanced the user experience, strengthened the property’s amenity offering, and contributed to a notable increase in asset value.

All drawing submissions received full approval from the local planning and development authority; the completed work surpassed client expectations in both construction delivery and architectural coherence.

Drawing Issue—Gazebo

Gazebo—Floor Plan & Foundation Plan [Underlay]
Gazebo—Section
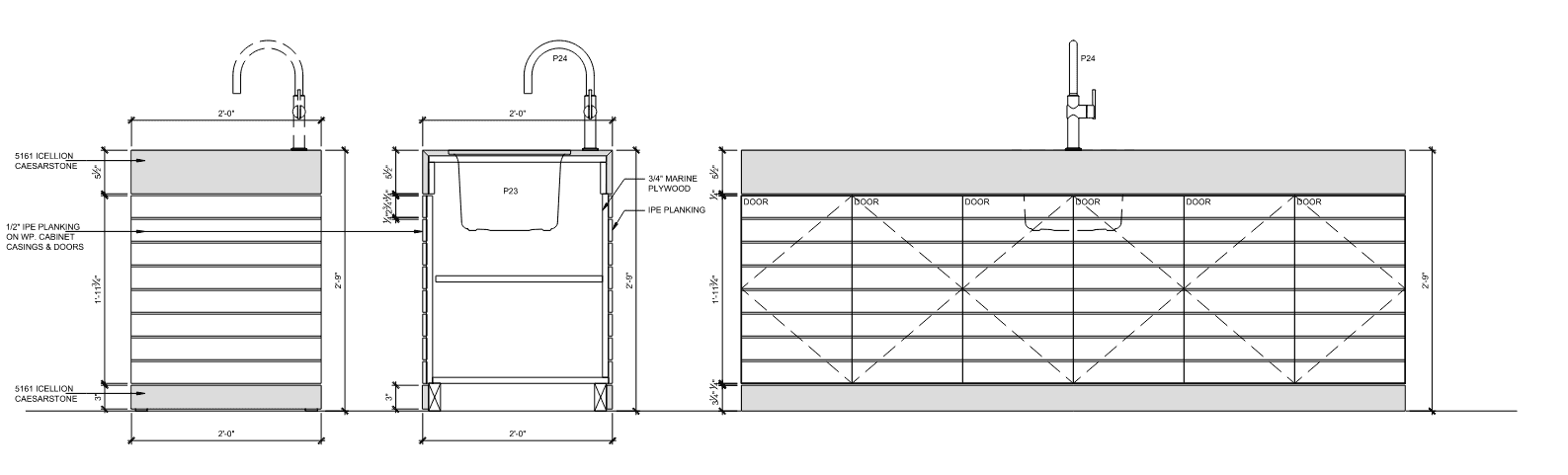
Gazebo Millwork—End Elevation, Detail Section & Front Elevation

Building & Construction Process

Results

The gazebo addition was executed to a high architectural standard, offering a minimal yet elegant design that integrates seamlessly with the property’s broader amenity upgrades. Its relationship with the adjoining spa creates a cohesive luxury feature that elevates the estate’s overall user experience.

Together, this spa pavilion and gazebo establish a distinctive wellness-focused amenity, strengthening the property’s market appeal and providing a refined focal point for relaxation and tranquillity.

This key addition has also increased the property’s appeal, elevated its value, and contributed to a more refined guest experience.

Justin Missick

Leeds, United Kingdom | +44 7456 048769 | justinmissick@outlook.com

© Discover Innovation, 2025.