The Point | Casitas

Project Overview

This project comprises the full design and execution of The Point, an exclusive, low-density oceanfront development featuring 38 luxury condominiums and a curated program of amenities. The master plan also includes 16 meticulously designed Casitas set within an elegant residential grove, each with a two-bedroom layout, private pool, and secluded garden.

The scheme prioritises spatial quality, contextual responsiveness, and a refined architectural language that elevates the coastal living experience.

Project Contributions

  • Collaborated closely with senior architects to refine design development, resolving spatial layouts, material strategies, and the integration of structural and MEP systems.

  • Prepared and issued complete construction packages, including detailed technical drawings, specifications, and coordinated BIM models to support accurate on-site delivery.

  • Assisted in producing high-quality visualisations and supported marketing initiatives aimed at strengthening commercial unit sales for the listed condominiums.

  • Gained strong exposure to RIBA Stages 1–3, enhancing design rigour, technical competence, and understanding of early-stage project coordination and delivery requirements.

Software Used

BricsCAD, Photoshop, SketchUp, Twinmotion

121,968 ft2

Area of site

$47M

Estimated budget

2023

Year

Under Construction

Status of the project

The Point | Grace Bay Resorts

The Point represents an exciting new chapter in the storied history of Point Grace, a boutique property thoughtfully crafted over the past two decades on one of the most sought-after stretches of Grace Bay beach.

Design Overview

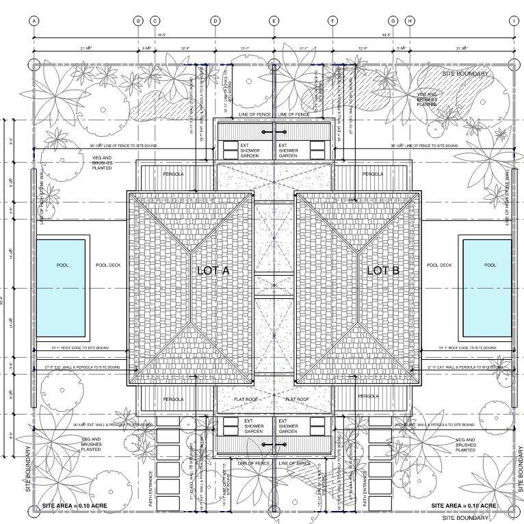
Site Master Plan | Casitas [Y]

Drawing Issue

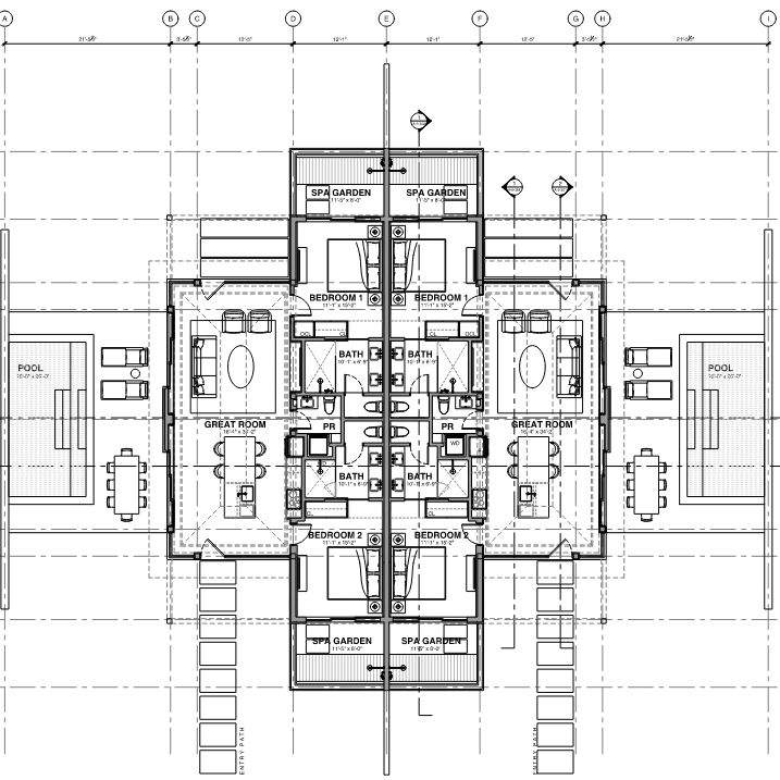
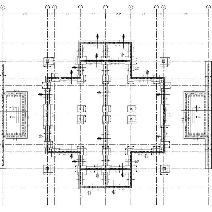
Foundation Plan
Floor Plan
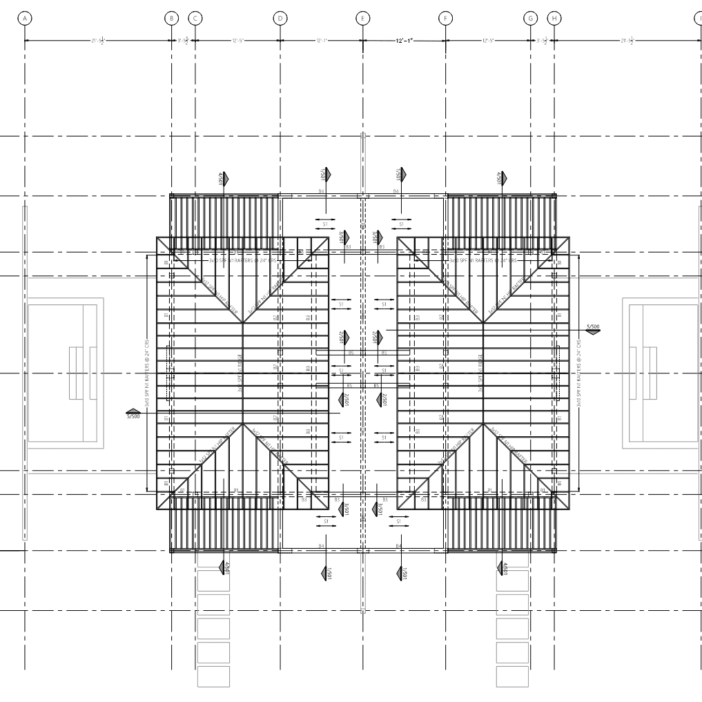
Roof Framing Plan
Site/Roof Plan
East Elevation
Longitudonal Elevation
Section [A]
Section [C]
Section [E]
General Casita Detail
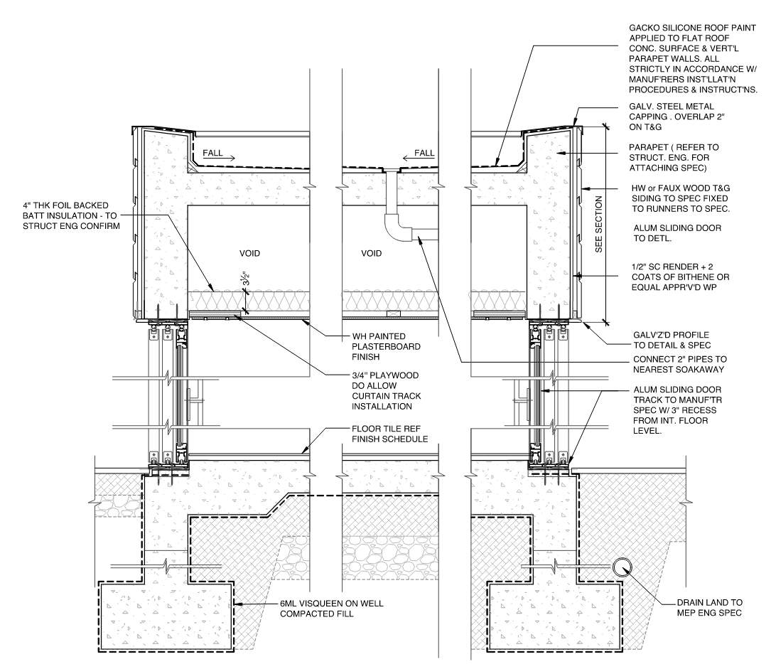
Flat Roof Detail
Pool Bench Detail
Entry Pergola Detail

Results

In summary, this project represents a distinguished collaboration between the award-winning team at SWA Architects and Young Huh Interior Design. The new Point residences [Casitas] unite refined residential architecture with exceptional interior detailing, offering an ultra-luxury living experience complemented by flexible rental potential.

Positioned to become one of the most coveted resorts in Turks and Caicos, this development stands as the most distinguished and meaningful project I have contributed to thus far.

SketchUp Model + TwinMotion Render

Justin Missick

Leeds, United Kingdom | +44 7456 048769 | justinmissick@outlook.com

© Discover Innovation, 2025.