Villa Haven House

Project Overview

Positioned along the pristine shoreline of Long Bay Beach in Turks and Caicos, Haven House offers an exceptional Caribbean retreat. The project encompasses the comprehensive remodelling, design, and execution of a primary villa and adjoining guest house, together providing seven well-appointed bedrooms that accommodate up to fourteen guests, ensuring both privacy and flexibility for families and larger groups.

This design prioritises thoughtful spatial planning, environmental responsiveness, and a sophisticated architectural language that elevates the quality of coastal living throughout the estate.

Project Contributions

  • Contributed to the vision, design development, and delivery of the Main Kitchen remodelling, Master Bath renovation, Guest House redevelopment, and Pavilion-to-Gym redevelopment.

  • Collaborated with senior architects, property managers, contractors, and MEP consultants to refine layouts and coordinate materials and specifications.

  • Conducted site evaluations and feasibility studies to guide design decisions and support required project approvals.

  • Produced coordinated technical drawing packages that helped reduce construction timelines by 25%.

  • Gained strong exposure across RIBA Stages 1–5, strengthening both design development and technical delivery skills.

Software Used

BricsCAD, Bluebeam Revu, SketchUp, Photoshop

7,000 ft2

Area of site

$225,000

Estimated budget

2025

Year

Complete

Status of the project

Villa Haven House

This elegant villa at Haven House, a true beachfront retreat on Long Bay Beach in Turks and Caicos, is perfect for breezy, starlit nights and carefree days on turquoise shallows.

The property strikes an ideal balance between seclusion and convenience, offering privacy when needed while remaining within effortless reach of dining options and activities along the quieter southeast coast of Providenciales.

Site Master Plan

Drawing Issue—Guest House

Guest House - Floor Plan [Existing]

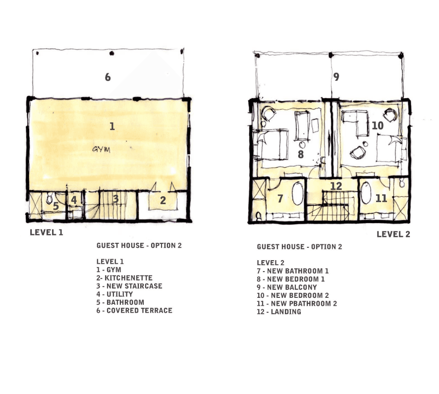
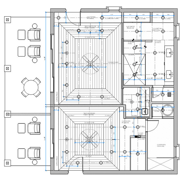
Guest House Renovation

The existing layout accommodates a compact one-bedroom guest house arranged around a central open-plan living, dining, and kitchen space, with private sleeping quarters and a shared bathroom positioned to one side. 

However, certain spatial, functional, and experiential constraints diminish the scheme’s ability to perform at the level expected of a high-quality guest accommodation.

While the existing layout is compact and fundamentally workable, strategic re-planning offers significant upside.

New Guest House - Floor Plan [Option 4/6]
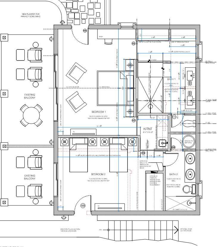
New Guest House - Floor Plan [Final]
New Guest House - Reflected Ceiling Plan
New Guest House - Electrical Plan
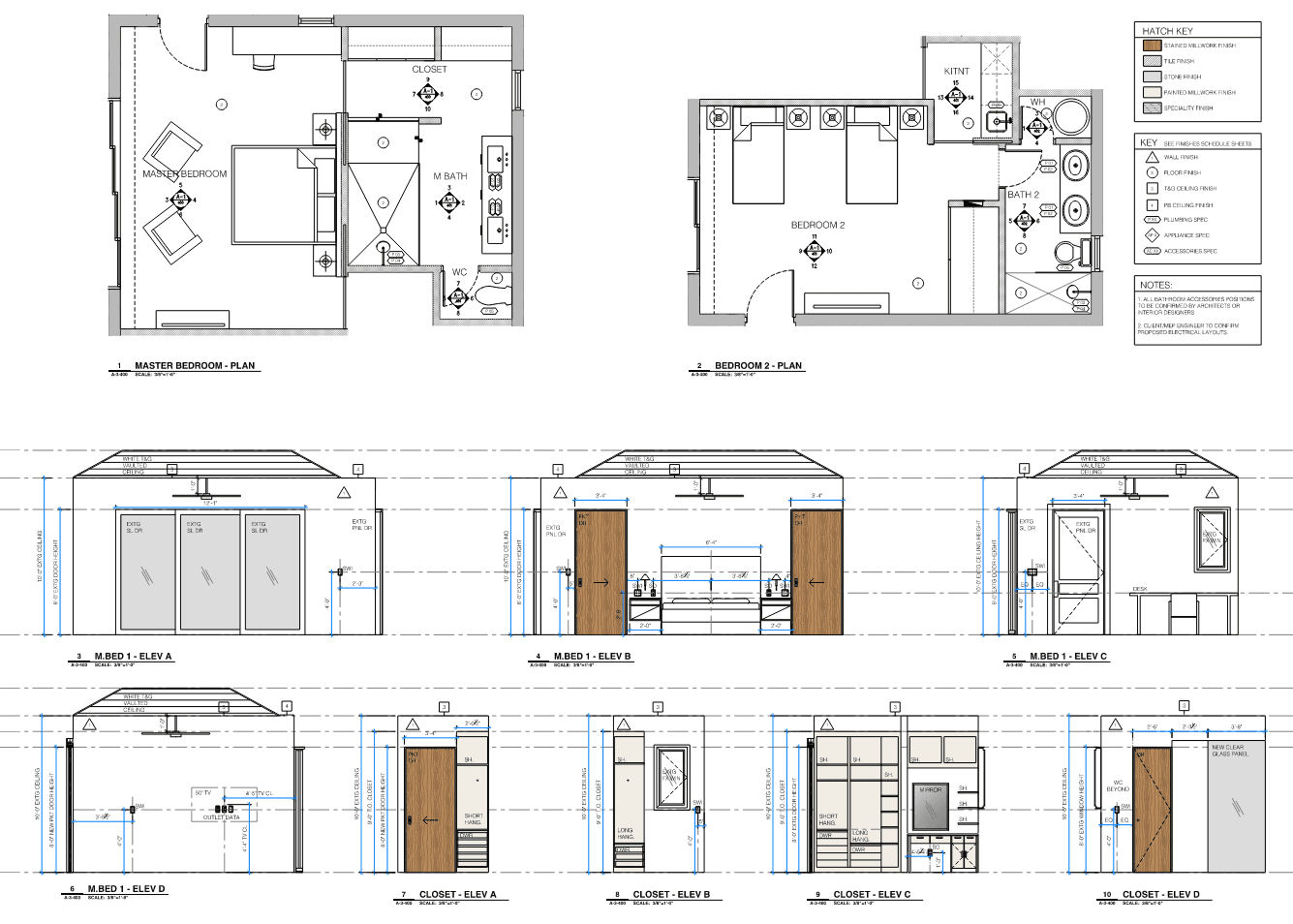
New Interior Elevations - Master Bedroom
New Interior Elevations - Bedroom 2

Results

The guest house renovation was executed to an exceptional standard, prioritising efficient spatial reconfiguration. The former single-bedroom family layout was transformed into a two-bedroom arrangement with new private balconies, improving privacy and boosting occupancy flexibility. This redesign has significantly enhanced the property’s long-term value, particularly within the short-term rental market.

The local planning authority successfully approved all drawing submissions, demonstrating full compliance with applicable building codes and regulatory requirements.

Drawing Issue—Main House [Master Bath]

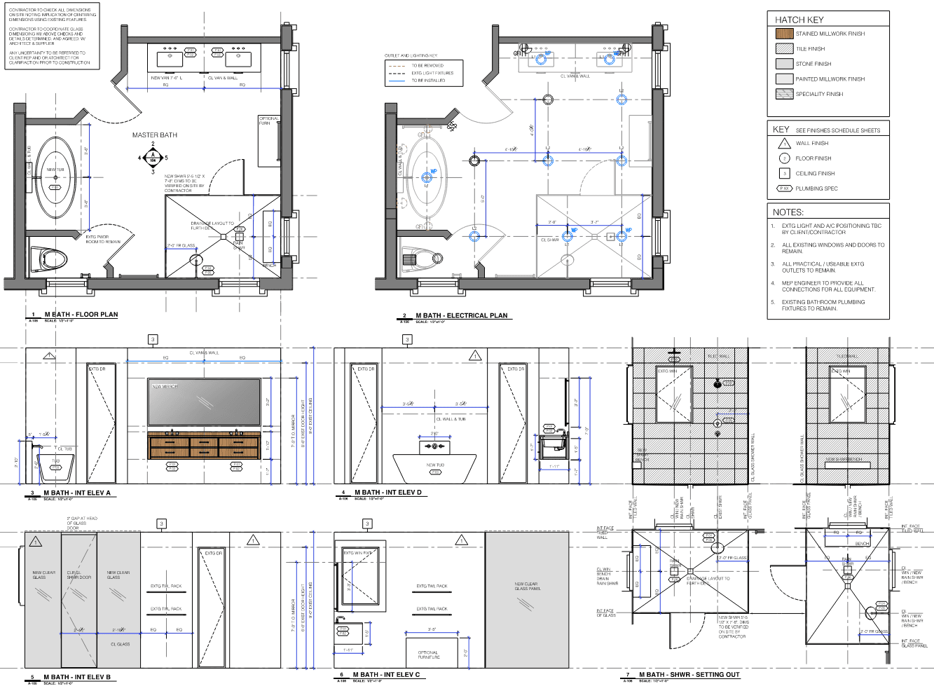
Master Bath – Floor Plan, Electrical Plan & Interior Elevations

Results

The master bathroom remodelling was successfully delivered, enhancing overall property value while elevating comfort and relaxation. The space was transformed into a private en-suite through the introduction of a soaking tub, rainfall shower, and improved ventilation. The renovation also optimised functionality by refining the layout, improving circulation, and incorporating bespoke storage solutions and custom vanities to support efficient daily use.

Existing Kitchen Layout

Kitchen Remodelling

The existing scheme accommodates full-height refrigeration, integrated wall ovens, extensive base cabinetry, and an island designed to support both food preparation and informal seating.

While the layout is generous in overall floor area and functionally complete, several spatial and experiential limitations prevent it from fully performing as a refined, contemporary family kitchen within a luxury villa setting.

New Kitchen: SketchUp Design

Building & Construction Process

Results

The kitchen remodelling was initiated in response to the client’s concerns regarding an outdated space, focusing on significantly improving functionality and operational efficiency.

The revised layout optimised workflow by refining spatial relationships, improving circulation, and establishing an efficient and modernised work triangle configuration. Integrated storage solutions and bespoke features were introduced to maximise usability while delivering a refined, contemporary aesthetic.

Existing Pavilion - Floor Plan

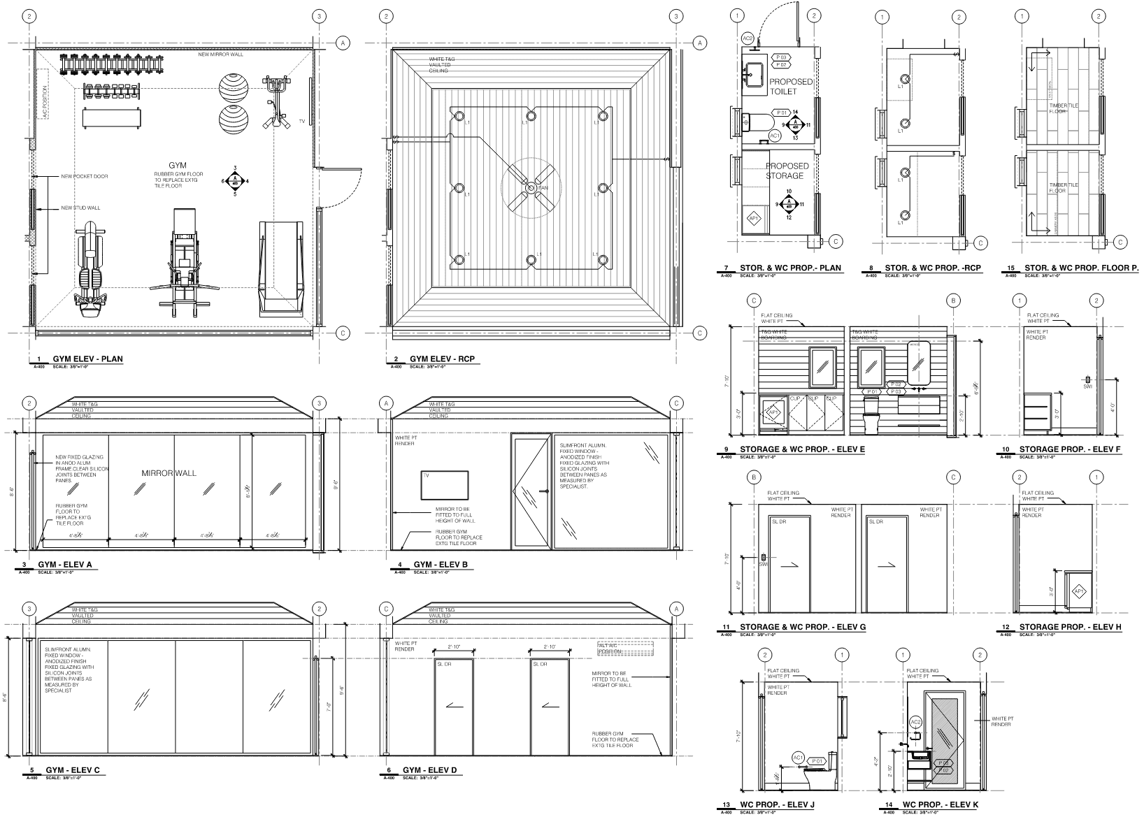
Gym Addition

The demand for high-end health and wellness amenities within the luxury property sector has risen markedly in recent years. In response, the client elected to integrate a premium fitness facility as a key component of the development, reinforcing their commitment to resident well-being while enhancing the property's overall market appeal.

Drawing Issue—Gym Addition

Concept Sketches
Concept Sketches
New Gym - Floor Plan
New Gym - Roof Plan
New Gym - Interior Elevations
New Gym - Elevations [A + C]
New Gym - Sections [C + D]

Results

This gym remodelling project was delivered successfully, surpassing client expectations in both functionality and design quality. The proposed drawings for the pavilion transformation received full approval from the local planning and development authority, with the design scheme meeting all relevant building code and regulatory requirements.

This outcome reflects a well-coordinated design approach and rigorous technical compliance on my behalf.

Justin Missick

Leeds, United Kingdom | +44 7456 048769 | justinmissick@outlook.com

© Discover Innovation, 2025.